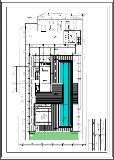
ویلای چهارباغ

ویلا در زمینی به مساحت 2500 مترمربع احداث شده است. طرح ویلا و المان های نورپردازی براساس شکل گیری خطوط در نما و داخل ساختمان، و نورپردازی محوطه براساس طرح سایه و روشن، با تأکید بر نورپردازی موقعیت طراحی شده است.
با توجه به مسیر حرکت اسب در پیرامون محوطه ویلا و پیاده روی مجاور طرح نورپردازی محوطه، ایجاد روشنایی در مسیر پیاده رو از طریق چراغ های ایستاده کوتاه با نورپردازی چهار طرفه، و چراغ های دیواری جهت روشن کردن مسیر حرکت اسب بوده است.
یکی از نکاتی که در نورپردازی محوطه بر آن تأکید شده است مسیر پارک ماشین مهمان، و هدایت آن ها به سمت ورودی ویلا از طریق نورپردازی درشب می باشد که این امکان بوسیله روشن کردن مسیر عبوری تحقق یافته است.
نورپردازی نمای ویلا با استفاده از نورپردازی خطی جهت تأکید بر حجم و معماری منظر در شب در نظر گرفته شده است.
با توجه به مسیر حرکت اسب در پیرامون محوطه ویلا و پیاده روی مجاور طرح نورپردازی محوطه، ایجاد روشنایی در مسیر پیاده رو از طریق چراغ های ایستاده کوتاه با نورپردازی چهار طرفه، و چراغ های دیواری جهت روشن کردن مسیر حرکت اسب بوده است.
یکی از نکاتی که در نورپردازی محوطه بر آن تأکید شده است مسیر پارک ماشین مهمان، و هدایت آن ها به سمت ورودی ویلا از طریق نورپردازی درشب می باشد که این امکان بوسیله روشن کردن مسیر عبوری تحقق یافته است.
نورپردازی نمای ویلا با استفاده از نورپردازی خطی جهت تأکید بر حجم و معماری منظر در شب در نظر گرفته شده است.
بیشتر بخوانید : چراغ خطی توکار
 
				
						






























